合肥蔚藍商務港廣發青蚨辦公裝修工程
| 項目名稱 | 合肥蔚藍商務港廣發青蚨辦公裝修工程 | 行業屬性 | 互聯網/電商/科技 |
| 項目地址 | 合肥市蜀山區蔚藍商務港D座 | 項目造價 | 52.8萬 |
| 主關鍵詞 |
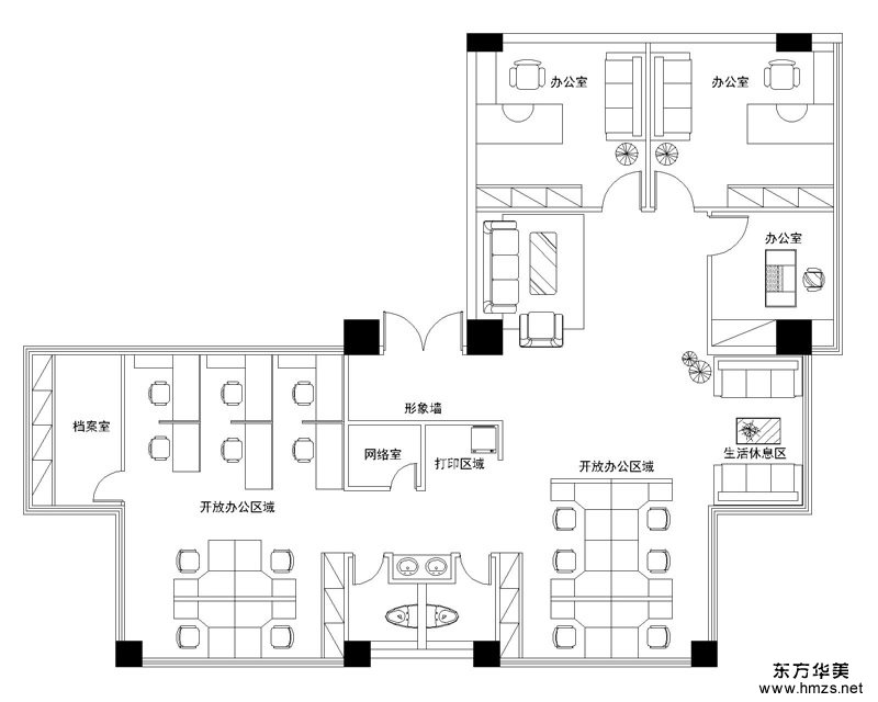
▄原建筑結構分析: 這個項目是原有客戶轉介紹的項目,我們的設計團隊很重視,在第一次見面過程中,就與甲方進行了深度的需求溝通,并對空間原始結構數據勘測和空調,消防,配電箱等做了詳細的查看和記錄。
▄設計需求: 甲方是個很務實并且很有品味的人,在設計過程中,我們的設計師除了考慮本項目的位置環境,同時還融入客戶特點,體現主人的性格,主人的作風,體現其中的文化。一個敞開的空間通過洽談室巧妙的分割成兩個獨立的辦公區。
▄設計風格定位: 本項目在風格設計上以現代為主,要求穩重、大方、寬敞、明亮,頂面采用鋁格柵吊頂、格柵燈等材料,使整個空間即簡約又寬敞明亮,在設計空間布局上,疏密有致,符合投資理財公司的空間布局,體現公司高效通透,以人為本的人性化管理。此項目前臺設計的偏新中式風格,背景墻使用木紋格柵和仿石材,開放性辦公區沿用了前廳的鋁格柵吊頂、格柵燈等材料,整個空間疏密有致。 前臺背景墻的背面也立于開放性辦公區內,此面墻用作于企業精神文化墻不僅宣傳了公司企業文化,也起到了裝飾作用。


北京鑄誠大廈辦公裝修工程
北京銀河SOHO辦公裝修工程
301醫院裝修工程
